Skip To Content

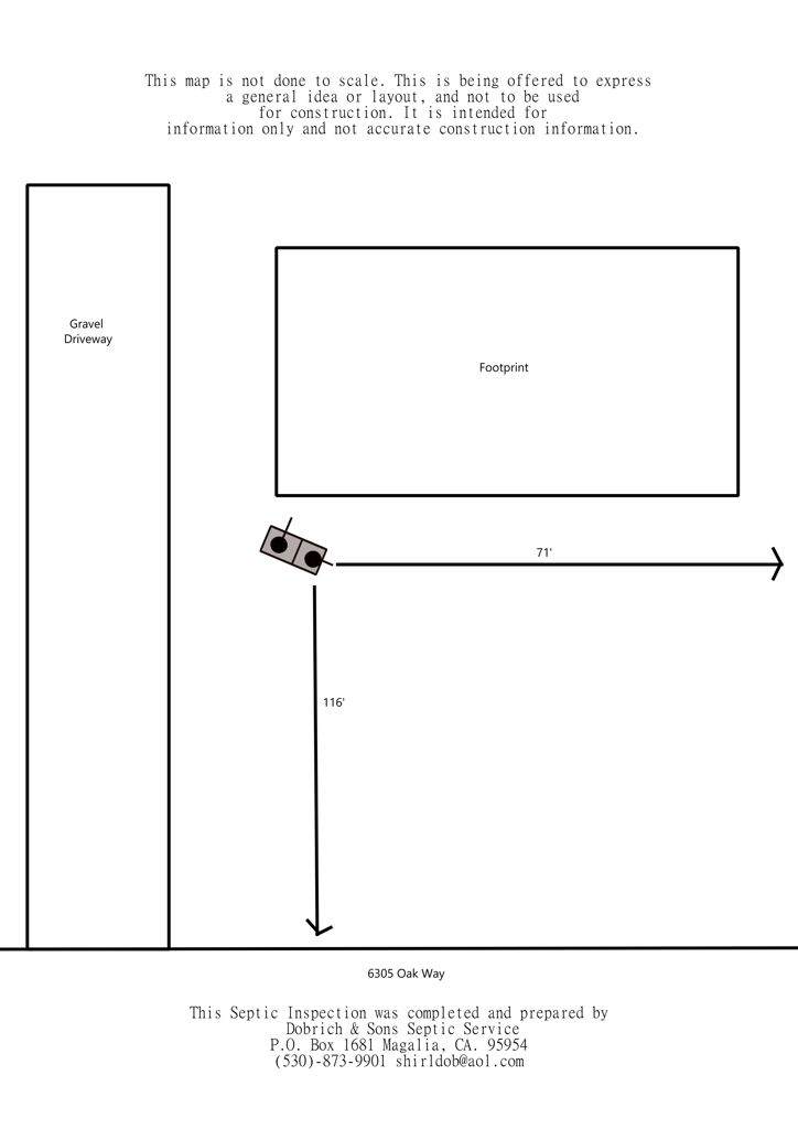
6305 Oak Way

Paradise, CA 95969
  • $32,000
  • STATUS: Active
  • ON SITE: 10 Days
  • ID#: SN26025081
UPDATED: 74 min ago
$32,000
  • 0
    BEDS
  • 0.74
    ACRES
  • 0
    BATHS
  • 0
    1/2 BATHS
Type:
Vacant Land / Lots
County:

School Ratings & Info

Listing Agent(s): Monica Hosier of Parkway Real Estate Co. (530-592-3432)


Description

Nestled in a peaceful, tree-lined setting, this 3/4 acre lot provides ample room to build your dream home, shop and garden! Paradise continues to rebuild with renewed energy, improved infrastructure and a strong sense of community pride-making now an exciting time to be a part of its next chapter! This vacant lot has a passed leach field but will need a new septic tank which you can tailor to suit the needs of your future construction. Easy access off of Skyway, this is a prime location on a lovely street!

Monthly Payment Calculator



Based on information from California Regional Multiple Listing Service, Inc. as of 2026-02-14T22:28:16.903. This information is for your personal, non-commercial use and may not be used for any purpose other than to identify prospective properties you may be interested in purchasing. Display of MLS data is deemed reliable but is not guaranteed accurate by the MLS or Action Realty. Licensed in the State of California, USA.
www.actionrealtyca.com/homes/172705874
Print Image

6305 Oak Way Paradise, CA 95969

  • Price: $32,000
  • Status: Active
  • On Site: 10 Days
  • Updated: 74 min ago
  • ID#: SN26025081
0
Beds
0
Baths
0
½ Baths
0.74
Acres
County:
Butte
Property Description
Nestled in a peaceful, tree-lined setting, this 3/4 acre lot provides ample room to build your dream home, shop and garden! Paradise continues to rebuild with renewed energy, improved infrastructure and a strong sense of community pride-making now an exciting time to be a part of its next chapter! This vacant lot has a passed leach field but will need a new septic tank which you can tailor to suit the needs of your future construction. Easy access off of Skyway, this is a prime location on a lovely street!
Exterior Features

Lot Features 0-1 Unit/Acre Sign On Property YN Yes View Neighborhood View YN Yes

Property Features

Additional Parcels YN No Association Fee 0 Association YN No Common Interest None Community Features Biking Land Lease YN No Listing Agreement Exclusive Right To Sell Listing Service Full Service Listing Terms Cash New Construction YN No Senior Community YN No Special Listing Conditions Trust Utilities Electricity AvailableWater Available Water Source Private Zoning RT1



Based on information from California Regional Multiple Listing Service, Inc. as of 2026-02-14T22:28:16.903. This information is for your personal, non-commercial use and may not be used for any purpose other than to identify prospective properties you may be interested in purchasing. Display of MLS data is deemed reliable but is not guaranteed accurate by the MLS or Action Realty. Licensed in the State of California, USA.
 
https://bt-photos.global.ssl.fastly.net/socal/orig_boomver_1_413899074-2.jpg https://bt-photos.global.ssl.fastly.net/socal/orig_boomver_1_413899074-2.jpg https://bt-photos.global.ssl.fastly.net/socal/orig_boomver_1_413899074-2.jpg
Logo
Action Realty
1664 Montgomery St
Oroville CA, 95965
Listing Agent(s): Monica Hosier of Parkway Real Estate Co. (530-592-3432)