Skip To Content

7250 Franklin Avenue , #506

Los Angeles (City), CA 90046
  • $380,000
  • STATUS: Active
  • ON SITE: 46 Days
  • ID#: CV25268521
UPDATED: 28 min ago
$380,000
  • 0
    BEDS
  • 1.23
    ACRES
  • 1
    BATHS
  • 0
    1/2 BATHS
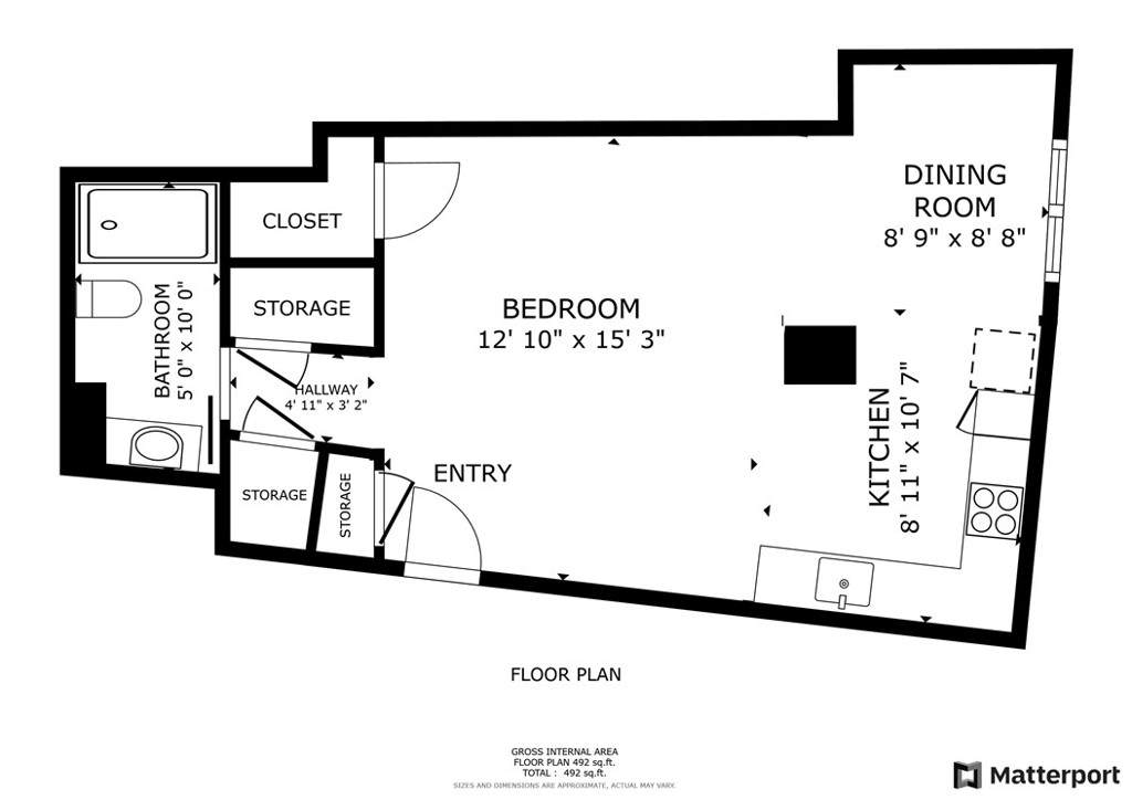
  • 492
    SQFT
  • $772
    $/SQFT
Neighborhood:
Type:
Condo
Built:
1964
County:

School Ratings & Info

School District:
Listing Agent(s): Jonathan Chi of BERKSHIRE HATH HM SVCS CA PROP (909-980-3100)


Description

Discover a luxurious urban lifestyle in this stunning studio unit located on the 5th floor of the prestigious Franklin Towers, right in the heart of Hollywood. This corner unit offers privacy with no direct connecting neighbors and features modern upgrades that exude sophistication.Step inside to find rich wood flooring throughout the main living space, beautifully complemented by oversized windows that flood the unit with natural light. The kitchen is a chef's dream, equipped with European style cabinetry, top-of-the-line Miele appliances, an Asko dishwasher, and a built-in Sub Zero refrigerator. The stainless steel appliances add both style and functionality.The spacious walk-in closet provides ample storage with shelves and double rack hanging space, ensuring everything has its place. The spa-like bathroom is designed for relaxation, featuring a walk-in shower with a rainfall showerhead.Residents of Franklin Towers enjoy unparalleled amenities including 24-hour front desk service, valet parking, a rooftop gym, and a rooftop deck with breathtaking city views. Additional perks include a pool, club/lounge room, yoga studio, steam room, and sauna. Community laundry facilities are conveniently close to the unit.Embrace the vibrant Hollywood lifestyle with this exceptional studio unit that combines modern luxury with convenience and comfort. Dont miss your chance to live in one of Los Angeless most sought-after addresses.

Monthly Payment Calculator



Based on information from California Regional Multiple Listing Service, Inc. as of 2026-01-22T22:28:44.97. This information is for your personal, non-commercial use and may not be used for any purpose other than to identify prospective properties you may be interested in purchasing. Display of MLS data is deemed reliable but is not guaranteed accurate by the MLS or Action Realty. Licensed in the State of California, USA.
www.actionrealtyca.com/homes/171191772
Print Image

7250 Franklin Avenue , #506 Los Angeles (City), CA 90046

  • Price: $380,000
  • Status: Active
  • On Site: 46 Days
  • Updated: 28 min ago
  • ID#: CV25268521
0
Beds
1
Baths
0
½ Baths
1.23
Acres
492
SQFT
$772
$/SQFT
1964
Built
Neighborhood:
C20 - Hollywood
County:
Los Angeles
Area:
C20 - Hollywood
School District:
Los Angeles Unified
Property Description
Discover a luxurious urban lifestyle in this stunning studio unit located on the 5th floor of the prestigious Franklin Towers, right in the heart of Hollywood. This corner unit offers privacy with no direct connecting neighbors and features modern upgrades that exude sophistication.Step inside to find rich wood flooring throughout the main living space, beautifully complemented by oversized windows that flood the unit with natural light. The kitchen is a chef's dream, equipped with European style cabinetry, top-of-the-line Miele appliances, an Asko dishwasher, and a built-in Sub Zero refrigerator. The stainless steel appliances add both style and functionality.The spacious walk-in closet provides ample storage with shelves and double rack hanging space, ensuring everything has its place. The spa-like bathroom is designed for relaxation, featuring a walk-in shower with a rainfall showerhead.Residents of Franklin Towers enjoy unparalleled amenities including 24-hour front desk service, valet parking, a rooftop gym, and a rooftop deck with breathtaking city views. Additional perks include a pool, club/lounge room, yoga studio, steam room, and sauna. Community laundry facilities are conveniently close to the unit.Embrace the vibrant Hollywood lifestyle with this exceptional studio unit that combines modern luxury with convenience and comfort. Dont miss your chance to live in one of Los Angeless most sought-after addresses.
Exterior Features

Attached Garage YN No Entry Level 1 Entry Location 1 Parking Features AssignedElectric Vehicle Charging Station(s)GarageValet Parking Total 1 Pool Features CommunityAssociation Pool Private YN No Property Attached YN Yes Spa Features Community Spa YN Yes View Neighborhood View YN Yes

Interior Features

Appliances DishwasherElectric CooktopElectric OvenDisposalRefrigerator Common Walls 2+ Common Walls Cooling Central AirElectric Cooling YN Yes Fireplace Features None Fireplace YN No Flooring Wood Heating CentralElectric Heating YN Yes Interior Features Stone CountersWalk-In Closet(s) Main Level Bathrooms 1 Main Level Bedrooms 0

Property Features

Additional Parcels YN No Association Amenities ClubhouseDog ParkFitness CenterMaintenance GroundsPoolRecreation RoomSaunaSpa/Hot TubSecurityTrashWater Association Fee 993.96 Association Fee Frequency Monthly Association Fee2 0 Association Fee2 Frequency Monthly Association YN Yes Common Interest Condominium Community Features SidewalksPool Contingency None Current Financing None Disclosures Covenants/Restrictions Disclosure Garage YN Yes Land Lease YN No Laundry Features Common Area Lease Considered YN Yes Levels One Listing Agreement Exclusive Right To Sell Listing Service Full Service Listing Terms Conventional New Construction YN No Number Of Units In Community 190 Possession Close Of Escrow Property Condition Turnkey Property Sub Type Condominium Security Features Fire Detection System24 Hour SecuritySmoke Detector(s) Senior Community YN No Sewer Unknown Special Listing Conditions Standard Structure Type House Water Source Other Zoning LAR3



Based on information from California Regional Multiple Listing Service, Inc. as of 2026-01-22T22:28:44.97. This information is for your personal, non-commercial use and may not be used for any purpose other than to identify prospective properties you may be interested in purchasing. Display of MLS data is deemed reliable but is not guaranteed accurate by the MLS or Action Realty. Licensed in the State of California, USA.
 
https://bt-photos.global.ssl.fastly.net/socal/orig_boomver_1_407662356-2.jpg https://bt-photos.global.ssl.fastly.net/socal/orig_boomver_1_407662356-2.jpg https://bt-photos.global.ssl.fastly.net/socal/orig_boomver_1_407662356-2.jpg
Logo
Action Realty
1664 Montgomery St
Oroville CA, 95965
Listing Agent(s): Jonathan Chi of BERKSHIRE HATH HM SVCS CA PROP (909-980-3100)